Main Content

230 Justin Drive, San Francisco, CA 94112

Schedule A Showing

    More Info

      230 Justin Drive San Francisco CA 94112

      230 Justin Drive
      Sold
      sold at 2,100,000
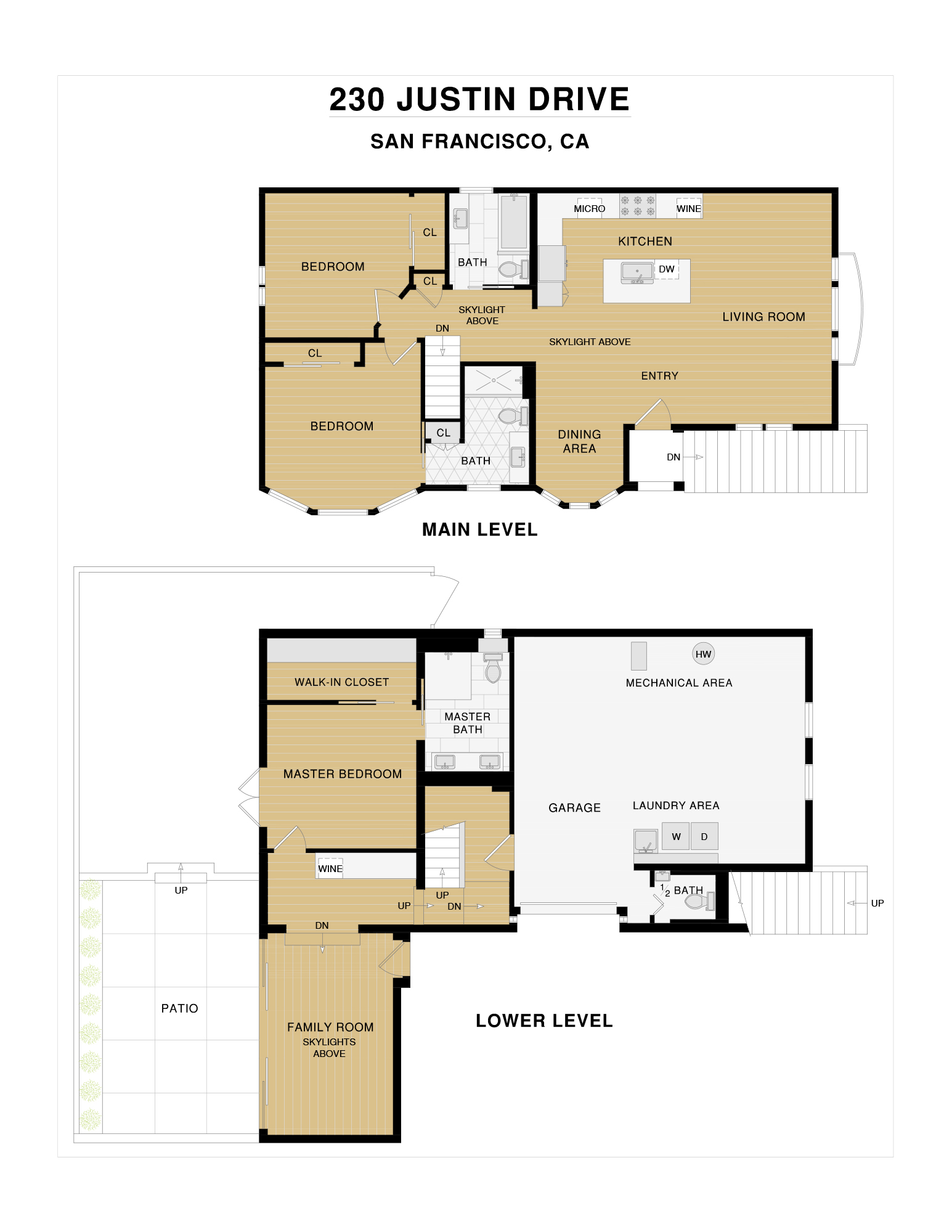
      3 beds 3.5 baths 3297 sq ft

      About This Property

      Stately and stylish three-bedroom, three-bath, fully detached, renovated luxury view home located in the timeless and inviting St.Mary’s park! The home is adorned with a classic façade, on a corner lot, with a majestic front yard and a dramatic staircase. A spectacular and tasteful remodel was done to create a generous, and modern open floor plan awash with natural light and warmed by the Bernal morning and evening sun. The upper level has two bedrooms, gorgeous floors, two baths, living/dining area, and a gourmet kitchen with an island, high-end finishes, and an inspiring view. The lower level has an entertainment room, master bedroom suite, with both opening to the landscaped private patio/garden/backyard. There are too many upgrades to list for this impeccable property along with plenty of storage, parking, and solar. Don’t miss this special home that is close to shopping, cafes, restaurants, public transportation, Tech shuttles, playgrounds, dog park, HWY 101/280 and more! The asking price was $1,459,000 and the sold price was $2,100,000!

      Explore

      Property

      Floor Plans
      Skip to content